

Agence de maîtrise d'œuvre et d'architecture d'intérieure
située au 5 Rue du château
LADOIX SERRIGNY (21550)
Réhabilitation partielle
PROJET P. Arcenant ( 21 )
Mission :
Complète : de la conception à l'exécution / suivi de chantier 2023
Objectif :
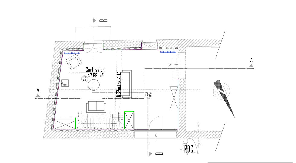
Réhabilitation d'une grange attenante à la maison afin de créer un espace entrée, un salon et un escalier pour accéder aux combles afin de créer un espace atelier/chambre d'amis.
Projet :
Au démarrage de la phase étude, lors du relevé constat problème de toiture, tuiles poreuses..
Conseille à la cliente de profiter de refaire sa toiture pour réisoler l'ensemble de la maison.
Réfection de toiture avant tout démarrage de chantier.
Suppression d'un accès à la cave en dessous.
Isolation du sol + chape
Réfection du plancher de l'étage, et création d'une trémie afin de créer un atelier/chambre d'amis sous combles avec un escalier.
Isolation sous toiture et périphérique des murs
Ouverture et Joints de pierre sur mur porteur entre maison et grange transformée en habitation.
Réalisation
![]() |
|---|
![]() |
![]() |
![]() |
![]() |
![]() |
![]() |
![]() |
![]() |
![]() |
![]() |
![]() |
![]() |
![]() |
![]() |
Etape chantier












































Etape Conception Projet






Photos éxistant























