

Agence de maîtrise d'œuvre et d'architecture d'intérieure
située au 5 Rue du château
LADOIX SERRIGNY (21550)
PROJET : Réhabilitation d'une grange en habitation
PROJET M. BEAUNE ( 21 )
Mission :
Complète : de la conception à l'exécution / suivi de chantier
Objectif :
Transformer une grange attenante à une maison en habitation.
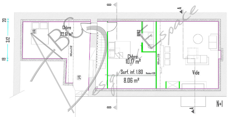
Et intégration de deux pièces ( RDC : ancienne cuisine et Etage : chambre ) de la bâtisse attenante, à la grange afin de créer deux chambres.
Projet :
Etant donné la belle hauteur sous plafond de la grange, le partie pris à été de garder la partie toute hauteur avec la charpente apparente pour la pièce de vie, et l'autre partie création d'un plancher et d'un escalier avec palier afin d'accéder aux deux chambres de l'étage.
Sous la partie plancher, intégration d'une salle d'eau et d'une cuisine ouverte sur la pièce de vie.
Côté habitation, condamnation de l'accès que ce soit au RDC ou à l'étage depuis l'habitation, afin d'isoler la nouvelle habitation.
Création de deux accès sur le mur porteur entre la grange et l'habitation, un au RDC et un à l'étage.
Niveau travaux :
Création de deux ouvertures entre la grange et l'habitation existante pour accès à une chambre au RDC ( en lieu et place d'une cuisine) et une chambre à l'étage.
Changement des menuiseries
Réseaux VRD pour SDB et cuisine
Isolation du sol et plancher chauffant pour la partie grange
Création d'un plancher sur la moitié de la grange pour une 3ème chambres.
Isolation thermique des rampants et murs
Finition du sol au plafond.
Réalisation
![]() |
|---|
![]() |
![]() |
![]() |
![]() |
![]() |
![]() |
![]() |
![]() |
![]() |
![]() |
![]() |
![]() |
![]() |
![]() |
![]() |
Etape chantier














































































Etape Conception Projet









































